Ultimate Living: Bold Design & Supreme Comfort
ENQUIRE NOW
Description
Imagine your life in this stunning new home, planned for a sunny corner site in popular Prebbleton – $1,075,000
Based on our initial concept drawings, this design is all about smart, modern living. We’ve made the most of the corner spot to plan for all-day sun and privacy. The bold roof and layout are designed to be both impressive and practical, with open-plan living flowing outdoors.

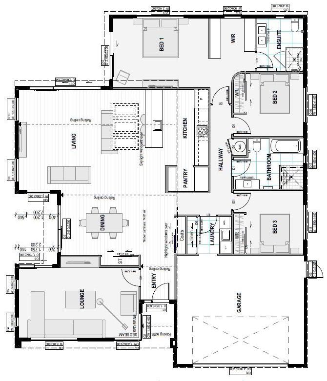
This home features:
3 Bedrooms
2 Living areas
1 Big kitchen with a pantry
3 Skylights
Raking Ceilings
Bosh Kitchen Appliances
Generous free-standing bath in the bathroom
Mitsubishi Ducted Heating
Timber Laminate Floor for Entry, Kitchen, Dining, and Living.
Tiled shower in the Main bathroom and the Ensuite
R7.2 insulation in the ceiling
R2.8 insulation in exterior walls
High Grade Windows – Includes Low-E glass, Argon gas & Thermally broken aluminum
Designer kitchen with engineered stone bench tops
2.2m high internal doors (polycore) for better heat flow
Driveway and Patio are included
Lawn, Letterbox, and Clothesline are included
Pre-wired for future solar & electric vehicle
10-year Master Builders Guarantee
Please note this home is not currently under construction (subject to final developer’s approval)
The title for the section is expected in Feb 2026, with completion of the house estimated for Aug/Sep 2026.
The sale is based on two contracts, one for the land and a Master Builder contract for the build based on progress payments.
Kevin Kang
kevin@greenhomesnz.co.nz
Ph: 021 111 2319
Floorplan
