Fantastic dual living Home & Income, or self-contained 1 bedroom unit with kitchen & bathroom for Mum & Dad?
With a new Woolworths and primary school already under construction and specialty shops to follow, along with all the green areas & public walk-ways, Arbor Green is a premium subdivision in high demand.
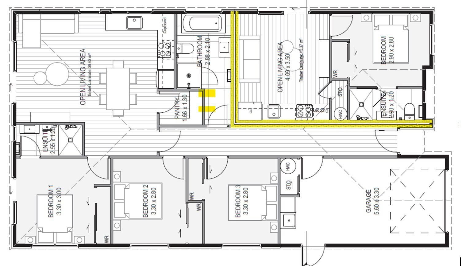
A Unique Home with Dual Living Options
This home features a separate self-contained 1-bedroom unit with its own kitchen and full bathroom—perfect for:
- An elderly parent wanting independence while staying close
- Giving one of the kids their own space
- Generating passive income with rental potential of approx. $380 to $400 per week ($20,000 per year)
Why Choose a Green Home? At Green Homes, we specialise in high-performance homes designed for comfort, energy efficiency, and sustainability. Our homes keep you warm in winter, cool in summer, and maximise both resources and space effectively.
Property Features:
Main Home
- 3 Double Bedrooms
- 2 Bathrooms
- Spacious Open-Plan Living & Dining
- Walk-in pantry
- Large Walk-in wardrobe
Self-Contained Unit
- 1 Double Bedroom
- 1 Bathroom
- Kitchen & Living Area
- Open-Plan Living & Dining
- Covered outdoor area (alfresco)
Garaging & Parking:
- Single Garage (can change to a double for extra cost)
- Off-Street Parking for 2 Vehicles
Superior Build & Energy Efficiency:
- Above-Code Insulation: R7.2 in ceiling, R2.8 in exterior walls
- Rib Raft Foundation with Insulation for superior thermal performance
- High-Grade Windows: Low-E glass, Argon gas, Thermally Broken Aluminum
- 2 x Designer Kitchens with engineered stone benchtops
- 2.2m High Internal Polycore Doors for better heat distribution
- 2 x Heat Pumps for year-round comfort
- Prewired for Future Solar & EV Charging
- Generous Concrete Driveway, Paths & Patio Areas
- Soft landscaping included – Grass (hydroseed) and garden beds with plants
- 2 x Letterboxes & clothelines
- Both the main home and unit have their own power boards, water meters, fibre, and bins
- 10-Year Master Builders Guarantee for peace of mind
- Fixed Price Contract – No surprises!
Further Notes:
- Not yet under construction – pending final developer approval
- Pay an 8% Deposit and balance on completion
- Title already issued. Expect to start building in November with an expected completion date in May/June 2026 (gives you more time to save) .
Make This Your New Home and/or Investment Property!
Build your home with a company that cares—experience the Green Homes difference today.
Contact Geoff today for more details. Ph (021) 662494
Floorplan
