Rolleston, Selwyn, Canterbury

Land Area

NA

Home Area

NA

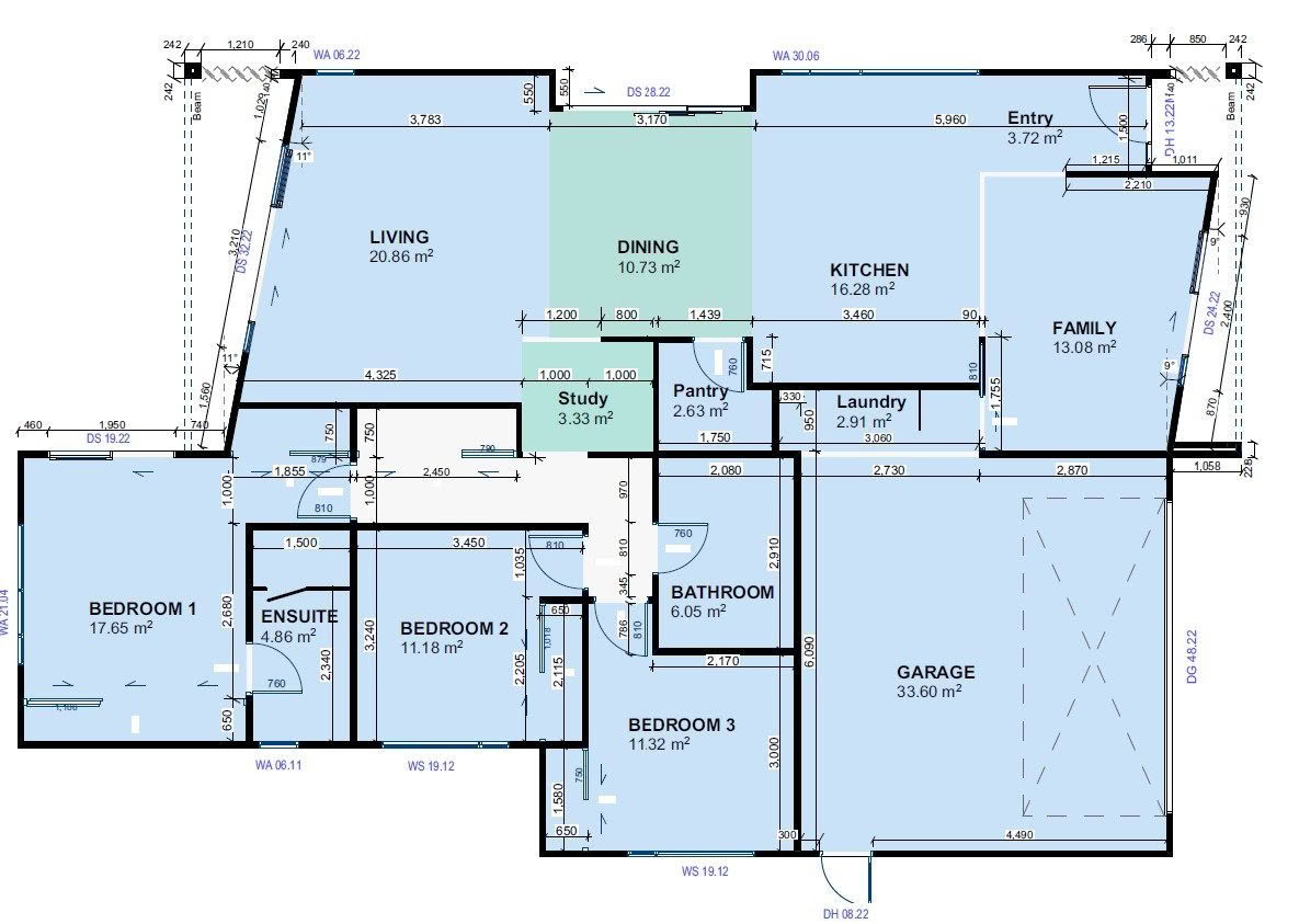
Bedrooms

NA

Bathrooms

NA

Carspaces

NA

Living Areas

NA

Kitchens

NA

ENQUIRE NOW

Asking price $931,400

Modern Family Home in Premium Rolleston Subdivision

This thoughtfully designed modern family home is perfect for a variety of lifestyles—whether you’re an avid gardener looking to downsize or have a young family that needs space to play in the backyard.

At Green Homes, we specialize in higher-performing homes designed for comfort, energy efficiency, and sustainability. Our homes are built to keep you warm in winter, cool in summer, and maximize both resources and space effectively.

Home Features (read carefully as includes lots of premium upgrades):

  • 3 Double Bedrooms
  • 2 Bathrooms
  • Open-Plan Living & Walk-In Pantry
  • Fantastic high raked ceiling throughout dining, kitchen & living areas
  • Covered Outdoor Living
  • Double Garage
  • Above-Code Insulation: R7.2 in ceiling, R2.8 in exterior walls
  • Rib Raft Foundation with Insulation for superior thermal performance
  • High-Grade Windows (Low-E glass, Argon gas, Thermally Broken Aluminum)
  • Designer Kitchen with engineered stone benchtops
  • Bosch appliances including induction hob
  • Skylights x 3 – 2 in the kitchen with blinds & 1 in the main bathroom
  • Mitsubishi fully ducted heating & cooling system throughout the home
  • 2.2m High Internal Polycore Doors for better heat distribution
  • Prewired for Future Solar & Electric Vehicle Charging
  • Includes Concrete Driveway, Paths & Patios
  • 10-Year Master Builders Guarantee for peace of mind
  • Fixed Price Contract – No surprises!

Important Notes:

  • Not yet under construction – pending final developer approval
  • Two-contract structure: One for the land and a Master Builders contract with progress payments for the build
  • Title expected in June 2025

Build your dream home with a company that cares—experience the Green Homes difference today!

Contact Geoff for more details.

Gallery

  • This field is for validation purposes and should be left unchanged.
  • What House & Land package are you enquiring about?