Calling First-Home Buyers & Investors!
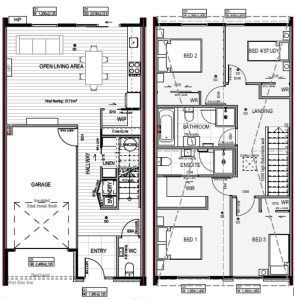
Here’s a rare chance to secure a brand-new 4-bedroom, 2.5-bathroom townhouse with a single garage. Priced from $625,000 (middle units), 35 Dodd Rd, Rolleston.
Why this opportunity stands out:
- Last chance at this price – 4-bedroom townhouses at this level are becoming extremely hard to find.
- Fully landscaped garden included – a big bonus rarely offered on new builds under $650K.
- Freehold title – no body corporate fees and no surprise costs later.
- Ideal for first-home buyers – modern, low-maintenance living at an affordable entry point.
- Strong investment appeal – 4-bedroom homes at this price deliver excellent rental demand and attractive yields.
- Opportunities like this don’t last long. Only 3 homes remain.
Key Features of the Units:
- 4 Bedrooms (Master with Walk-in Wardrobe)
- 2 Bathrooms + Separate Downstairs Toilet (3 toilets in total)
- Open-Plan Living Area
- Designer Kitchen with Walk-in Pantry
- Single Internal-Access Garage + Off-Street Parking
- Sunny North-Facing Outdoor Living Space
- Fully Landscaped Section (Hard & Soft Landscaping), Including Clothesline & Letterbox
- Full-Height Fenced Backyard
- Exceptional Energy Efficiency & Peace of Mind:
- High-Performance Insulation: R7.2 Ceiling & R2.8 Walls
- Insulated Rib-Raft Foundation
- Double Glazing with Low-E Glass, Argon Gas & Thermally Broken Aluminium Joinery
- Pre-wired for Future EV Charging Point
- 10-Year Master Build Guarantee
- Fixed Price Turn-Key Contract
- Freehold Title – No Body Corporate Fees
- 5% Deposit Only to secure, with the balance on completion.
Timeline:
Construction is scheduled to begin late February or Early March 2026, with completion expected by September/October 2026 — giving you extra time to save and plan your move.
Call Kevin Kang
kevin@greenhomesnz.co.nz
Ph: 021 111 2319
Floorplan
