The good sections don’t wait around… why should you?
This is not the time to faf around, as it’s slim pickings on Strawberry Place!
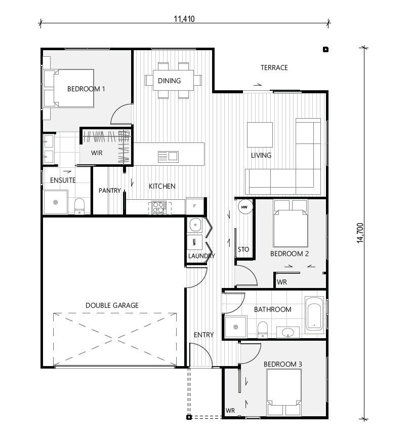
It’s hip to be square – this fetching home, our Sabine, plan suits shallow sites and its quadratic shape allows for generous outdoor living space. The kitchen, dining area, lounge and master bedroom all trap in the sun rays for even more energy efficiency.
Bedrooms and main bathroom are well situated, the kitchen features a convenient walk-in pantry and the in-built laundry doesn’t encroach on garage or floor space.
So will the serene Sabine be your next sanctuary?
Key specs:
- R7.2 insulation in the ceiling
- R2.8 insulation in exterior walls
- High Grade Windows – Includes Low-E glass, Argon gas & Thermally broken aluminum
- Designer kitchen with engineered stone bench tops
- 2.2m high internal doors (polycore) for better heat flow
- Pre-wired for future solar & electric vehicle
- 10-year Master Builders Guarantee
Why go Green?
Green Homes prioritises flexibility, functionality and stylish design while helping you to find the perfect home for your exact needs.
We specialise in energy efficient design & builds and home and land packages that suit your personal preferences and budget.
If you’re searching for more sustainable homes that help to keep your wellbeing and power bills in check, then keep reading!
Why choose Green Homes South Canterbury?
With decades of hands-on building experience (and a cabinet full of Master Builders awards), our crew are on a mission to bring higher-performing, healthier homes to the region. Energy-efficient, beautifully built, and made to last. See the Green Homes advantage in every detail with thermally efficient, healthy and comfortable dwellings so you can feel right at home!
Important Notes: This home is not yet under construction. Title has been issued, please contact John regarding further details around build commencement, expected completion dates etc.
After a different design or location? Flexibility is one of our key strengths, we can modify most plans, or develop a design to accommodate your exact needs and site. Green Homes South Canterbury can also give you a hand finding land in another part of the region, just contact me with your wish list and I’ll make it happen!
After more info?
Connect with Amanda today: Amanda.G@greenhomesnz.co.nz
| 027 224 2329 |
Floorplan
