This family home has been designed for efficient use of space and is set on a generous section in Arbor Green, and won’t be on the market for long! $753,940

Arbor Green is an exciting new subdivision in Rolleston that will feature its own Woolworths supermarket and new primary school currently under construction. A future neighborhood shopping center, a public green, and a regular weekend market are also planned—making this a thriving community with rising property values.
Why Choose a Green Home?
At Green Homes, we specialise in high-performance, energy-efficient homes designed to keep you warm in winter and cool in summer while maximising sustainability and comfort. Our practical layouts optimize space and resources, ensuring a healthier living environment for your family.
Key Features:
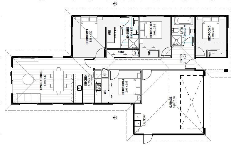
- 4 Double Bedrooms
- 2 Bathrooms
- Open-Plan Living Area
- Good size family section – plenty of room for kids to play outside
- Double Garage
Superior Build Quality & Energy Efficiency:
- Above-Code Insulation: R7.2 in the ceiling, R2.8 in exterior walls
- Rib Raft Foundation with Insulation for Enhanced Thermal Performance
- High-Grade Windows: Low-E Glass, Argon Gas, & Thermally Broken Aluminum
- Designer Kitchen with Engineered Stone Benchtops
- 2.2m High Internal Polycore Doors for Better Heat Retention & Distribution
- Prewired for Future Solar & EV Charging
- Concrete Driveway, Paths & Patio Area are Included
- Letterbox & Clothesline
Peace of Mind:
- 10-Year Master Builders Guarantee
- Fixed Price Contract – No Surprises!
- Turn-Key – Pay 5% deposit and balance on completion
Important Notes:
- Not yet under construction – pending final developer approval.
- Title issued, building to commence in November with expected completion in April/May 2026 (Move in before winter!)
Interested? Contact Geoff Ph (021) 662494
Don’t miss this opportunity to secure a high-quality, energy-efficient home in an exciting new community.
Floorplan
