That’s Wow factor – Waimauku, Rodney $1,595,000
ENQUIRE NOW
The Home built for views
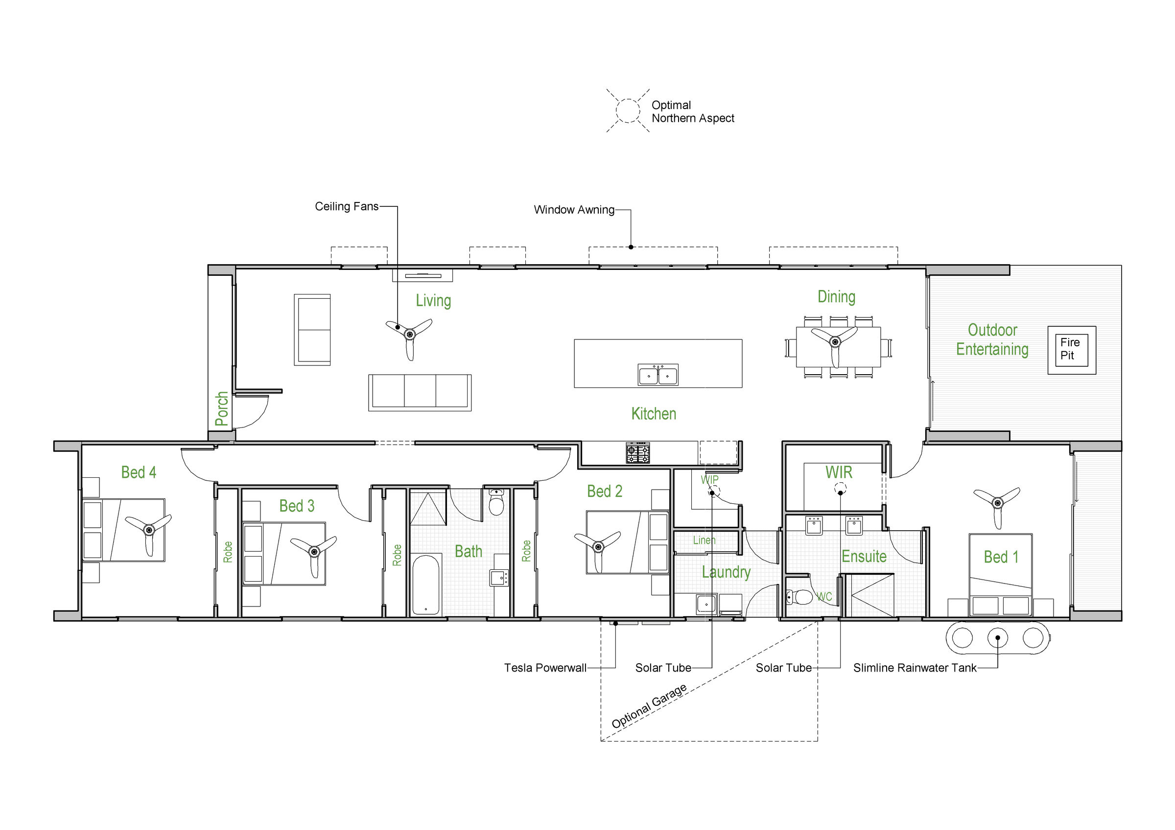
At Green Homes we prioritise energy efficiency and optimisation in every build, ensuring a healthier living environment for your family. This specially designed home offers exceptional value with fantastic indoor/outdoor flow, with high ceilings in the living, solar panels, hot water heat pump, fully ducted air conditioning, tiled showers including niche, separate scullery, laundry and storage room, insulated garage and door and extra insulation to not only save your future running costs but give your family a warmer, healthier home.
We can offer both design & build or house & land packages. Fixed Price options available upon request.
This package includes:
- A generous allowance for kitchen including designer
- A 10 year Master Build Guarantee
- Above code insulation for improved comfort and energy savings
- Roca Cold Start tapware, enhancing energy efficiency and style
- Thermally broken double glazed windows
- Pre-wiring for EV chargers and Solar energy
- In home Air Quality monitor Bosch appliances including dishwasher
- Colour consultancy
- Master Build staged payment packageCall now or arrange a consultation with our in-house design team today to learn more. Take a look at some of our plans: https://greenhomesnz.co.nz/foundation-collection-2022-view/ Plan Aurora
*Package not based on a specific section, price based on a clear, flat building site with a land value of $775,000
*Photos are of homes built by Green Homes
*Artists impression may differ from plan *Driveway, septic system, water tanks, fencing & landscaping not included
Interested in this attractive home?
Floorplan
