Description
Live in Arbor Green, Rolleston’s Premier Subdivision $789,810
Enjoy a superior lifestyle in the highly sought-after Arbor Green community. This master-planned neighbourhood features extensive green spaces, native shrubs, and a wide range of amenities right at your doorstep. With new schools, a supermarket, retail shops, and medical services all within easy reach, everything is designed for your convenience. Our two new show homes will be ready early next year.

Our house and land packages are ideally located near the new show homes and the brand-new Woolworths supermarket, offering unparalleled convenience, placing you in the heart of the action.
With bank interest rates decreasing, now is the time to act. Secure this exceptional opportunity before it’s gone!
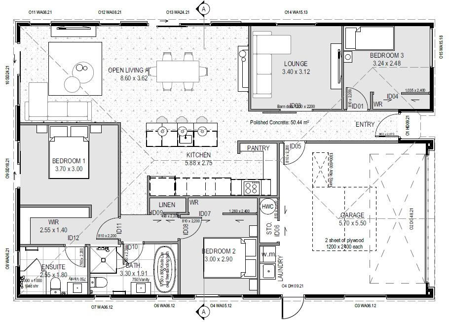
This home features:
3 Bedrooms
2 Living areas
1 Big kitchen with pantry
Generous free-standing bath in the bathroom
The Barn door in the Lounge
Attic Storage with ladder
Double garage
Tiled shower in the Ensuite
Polished concrete floor in the Entry, Hallway, Living, and Kitchen
R7.2 insulation in the ceiling
R2.8 insulation in exterior walls
High Grade Windows – Includes Low-E glass, Argon gas & Thermally broken aluminum
Designer kitchen with engineered stone bench tops
2.2m high internal doors (polycore) for better heat flow
Driveway and Patio are included
Metal Side Gate, Letterbox, and Clothesline are included
Lawn and Plantings are included
Pre-wired for future solar & electric vehicle
10-year Master Builders Guarantee
Fixed Price
Please note this home is not currently under construction (subject to final developer’s approval)
This is a TURNKEY package, 5% Deposit Only for now, and the balance on completion
If you are interested in this property, Contact Kevin now to find out more:
Kevin Kang
kevin@greenhomesnz.co.nz
Ph: 021 111 2319
Floorplan
