We are pleased to present a standout opportunity suiting a wide range of buyers in Hampton Grove, Prebbleton
From those retiring or downsizing to first-home buyers and growing families this offering combines the affordability of a new build with the enduring value of a standalone property, making it a sound investment choice.

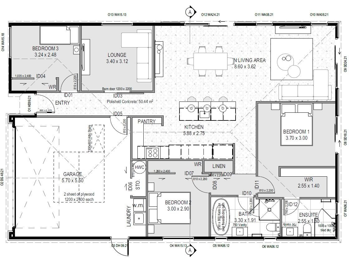
Priced at an exceptional $799,000, this package includes a 158m², 3-bedroom home with a double garage. It is situated on a premium lot within the Hampton Grove subdivision, directly facing a reserve—a highly sought-after and scarce feature in today’s market.
With bank interest rates decreasing, now is the time to act. Secure this exceptional opportunity before it’s gone!
This home features:
- 3 Bedrooms
- 2 Living areas
- 1 Big kitchen with pantry
- Generous free-standing bath in the bathroom
- Attic Storage with ladder
- Double garage
- Tiled shower in the Ensuite
- Polished concrete floor in the Entry, Hallway, Living, and Kitchen
- R7.2 insulation in the ceiling
- R2.8 insulation in exterior walls
- High Grade Windows – Includes Low-E glass, Argon gas & Thermally broken aluminum
- Designer kitchen with engineered stone bench tops
- 2.2m high internal doors (polycore) for better heat flow
- Driveway and Patio are included
- Lawn, Letterbox, and Clothesline are included
- Pre-wired for future solar & electric vehicle
- 10-year Master Builders Guarantee
Please note this home is not currently under construction (subject to final developer’s approval)
The title for the section is expected in November this year, with completion of the house estimated for May/June 2026.
The sale is based on two contracts, one for the land and a Master Builder contract for the build based on progress payments. Images are artist’s impression only.
If you are interested in this property, contact Kevin Ph (021) 1112319
Floorplan
