Welcome to Prebbleton
This is a popular area because of its ever-expanding facilities (schools, parks & reserves, and major shopping centers) and its easy commute to Christchurch central city.
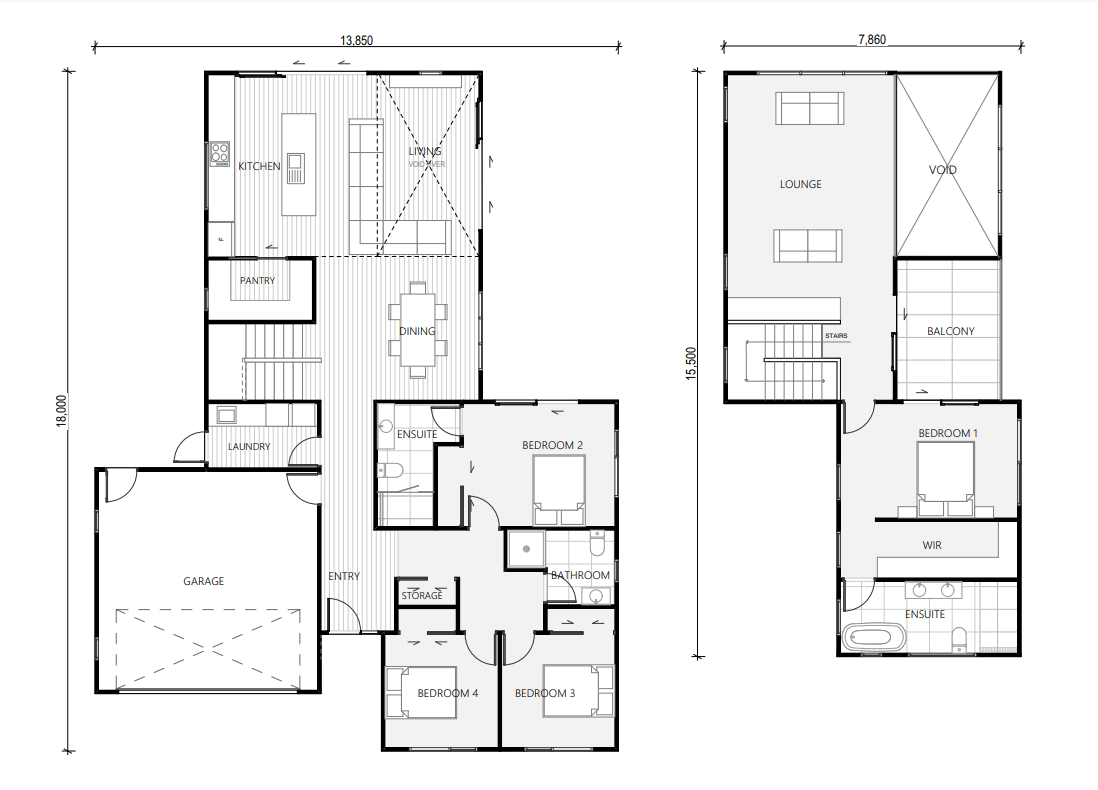
After an attractive two level family home on a good-sized section? This stylish and majestic home ticks all the boxes!

Well appointed bedrooms and bathrooms downstairs lead onto a roomy kitchen area with flowing living and dining areas greeting an inviting outdoor alfresco area.
Be the envy of your friends and family with private and warm second level living – without any disturbance from the kids below. It boasts all the usual conveniences plus it’s own generous lounge, and balcony area. Just look at that gorgeous mezzanine.
This is also the perfect home for accommodating out of town guests or for generating a sideline income for Airbnb.

This home features:
- 1 Master bedroom with Ensuite upstairs
- 1 Master Bedroom with Ensuite downstairs
- 1 Main Bathroom
- 1 Large open living area
- 1 Generous Lounge
- Double garage
- R7.2 insulation in the ceiling
- R2.8 insulation in exterior walls
- High Grade Windows – Includes Low-E glass, Argon gas & Thermally broken aluminum
- Designer kitchen with engineered stone bench tops
- 2.2m high internal doors (polycore) for better heat flow
- Pre-wired for future solar & electric vehicle
- 10-year Master Builders Guarantee
Why go Green?
Green Homes prioritises flexibility, functionality and stylish design while helping you to find the perfect home for your exact needs. We specialise in energy efficient design & builds and home and land packages that suit your personal preferences and budget. If you’re searching for more sustainable homes that help to keep your wellbeing and power bills in check, call in to one of our showhomes for some eco-friendly inspiration.
8 Treedale Street, Belfast, Christchurch 13 Finstock Way, Westwood, Rolleston Both Open Wed to Sun 12-4pm
See the Green Homes advantage in every detail with thermally efficient, healthy and comfortable dwellings so you can feel right at home!
Please note this home is not currently in construction (subject to final developers approval)
The sale is based on two contracts, one for the land and a Master Builder contract for the build based on progress payments.
If you are interested in this property, contact Kevin now to find out more on (021) 1112319
Floorplan
